Conception & Plans

C'est ici que commence notre aventure. De la prise de côtes de vos espaces à la réalisation de vos plans 2D, je vous propose un service à la carte, de l'esquisse à l'avant-projet définitif (APD). Plans 2D mis en couleurs, élévations des éléments principaux et déterminants pour votre projet, je vous propose un savoir-faire professionnel et technique.

Mon mot d'ordre: la qualité et un service impeccable.

Prestations architecte d'intérieur

Baimo Design c'est aussi un éventail adapté à vos besoins et votre budget.

Mon approche est axée sur la compréhension et la réponse à vos projets, en fournissant des solutions efficaces et pratiques. 

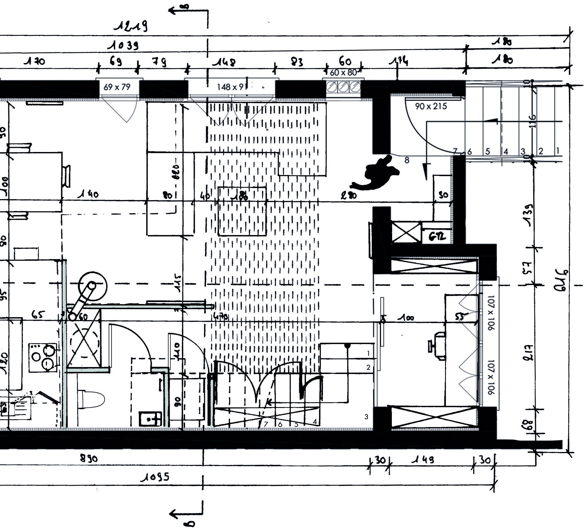
Phase d'esquisse

La phase d'esquisse est primordiale pour partir dans la bonne direction et valider les premières intentions avec quelques croquis.

A travers un premier rendez-vous, l’esquisse permettra de transformer vos envies et votre mode de vie en premières intentions d’aménagement. Ce temps de co-création pose les bases d’un projet sur mesure, construit en toute proximité avec vous, avant d’entrer dans les étapes plus techniques.

L'APS (avant-projet sommaire)

L'avant-projet sommaire est la phase où le projet commence à prendre forme.

A ce niveau, il s'agit de préciser les intentions définies lors de l’esquisse en structurant les volumes, les circulations et les ambiances de votre futur intérieur. Elle se développe en dialogue constant avec vous, afin de valider les grandes orientations du projet avant d’engager des choix techniques et budgétaires plus détaillés.

L'APD (avant-projet définitif)

En tenant compte du choix définitif de votre projet, je réalise les plans détaillés et plan d'intention pour les différents artisans qui interviendront sur votre chantier.

Cette dernière étape avant le début de la mise en oeuvre permet d'affiner et finaliser le projet en intégrant des choix précis de matériaux, d’aménagements et d’équipements, tout en respectant le budget défini ensemble. Menée en étroite collaboration avec vous, elle sécurise chaque décision et permet de préparer sereinement le lancement des travaux.